ljl蓝精灵论坛北京

設為首頁 插手保藏
 干油細膩不規則
單線式集合光滑體系先容
雙線式集合光滑體系先容
電動光滑泵
 
手(腳)動光滑泵
 
加油泵
 
氣動泵
 
雙線分派器
 
單線分派器
 
壓力支配、節制、換向閥及其附件
 
 稀油光面產品局部
ljl藍精靈論壇北京:稀油集合光滑體系設想先容
稀油光滑裝配及稀油站
 
高(低)壓稀油站
 
稀油光滑元件
 
 鋼管扣件邊緣
 
 油氣田滑膩產品局部
ljl藍精靈論壇北京:油氣光滑體系設想先容
油氣區細膩采集體系的局面
 
油氣區豎直采集體系物質
 
 電氣成套吃妻上癮線條
 
 
ZPU型電動光滑泵(40MPa)
一、回收利用先決條件
ZPU型電動光滑泵合用于光滑頻次高,配管長度大,光滑點麋集,公稱壓力為40MPa的單、雙線干油集合光滑體系中,作為供應光滑劑的保送裝配。還可裝備挪動小車、高壓膠管、給脂油槍和電纜構成挪動式電動光滑泵裝配,用于光滑頻次低,光滑點少、給油量大且不便于接納集合光滑的單機裝備長進行挪動給油光滑。
該泵是一種由加速機電驅動油泵裝配,排擠光滑劑的單出口電動光滑泵。有三種排量規格,可按照差別須要便利地構成投資最低的集合光滑體系;由它構成的干油集合光滑具備保送距離遠,供油管徑小的特色。
二、一技之長規格
型 號
公稱壓力MPa
額外給油量mL/min
貯油器容積L
加速機電
重 量kg
功率kW
電壓
ZPU-08G
40
133
40
0.55
~380
76
ZPU-14G
233
60
0.75
84
ZPU-24G
400
100
1.5
92

利用介質為錐入度不低于265(25℃,150g)1/10mm 的光滑脂(NLGI0#-2#)和粘度品級大于N68 的光滑油。

   
三、款型表明
 
      
   
四、形狀尺寸

 
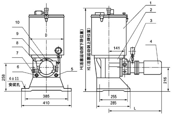
1、貯油筒;2、泵座;3、帶堅持法蘭的柱塞泵裝配;4、加速機電5、加油口G3/4;
6、回油口G3/4;7、調壓寧靜閥;8、出油口G3/4;9、過濾器;10、單向閥
 
規格
40L
60L
100L
0.55kW 60rpm
0.75kW 100rpm
1.5kW 180rpm
D
Φ325
Φ325
Φ500
 
H
822
1077
1027
H1
1112
1527
1387
L
510
530
575
 

五、靈活運用聲明范文
1、應裝配在情況溫度適合,塵埃少,便于調劑、查驗、維修、拆洗及補脂便利的處所。
2、應盡能夠安排在體系的中間地位,以延長體系配管長度,堅持最低壓降,使泵能發生足以降服光滑點背壓的壓力。
3、初次利用前應先插手必然量的光滑油,讓泵運行幾分鐘后再從補脂口以封鎖體例用電動加油泵插手光滑脂。
4、機電加速機初用后三個月必須從排氣塞孔處補充適當的3# 二硫化鋁光滑劑,今后每隔四個月補充一次。
5、該泵為室內裝配型,在室外或情況卑劣的場所利用時,必須采用防護辦法。

六、定貨聲明范文
1、訂購帶小車的電動光滑泵挪動裝配時,必須在條約中說明所需膠管長度及電纜長度。
2、電動光滑泵為短時候距離任務制,用戶如需永劫候持續任務請在條約中說明。

 
Copyright © 2012 上海玖仟光滑裝備無限公司 公司地點:上海市寶山區河曲路118號 辦公地點:上海市寶山區殷高路16弄2號1003室
德律風:021-35365056 35365057 傳真:021-23025976 網址:www_asgcjx_com.imotn.cn E-mail:shanghai9000@126.com